逗子・葉山
逗子マリーナを庭先に。~古き良き港町『小坪』に佇む新築戸建~
[この物件についてお電話でお問い合わせは]
0120-104-158
物件番号 36-30086
~古き良き港町『小坪』に佇む新築戸建~
ご覧いただきまして誠にありがとうございます。
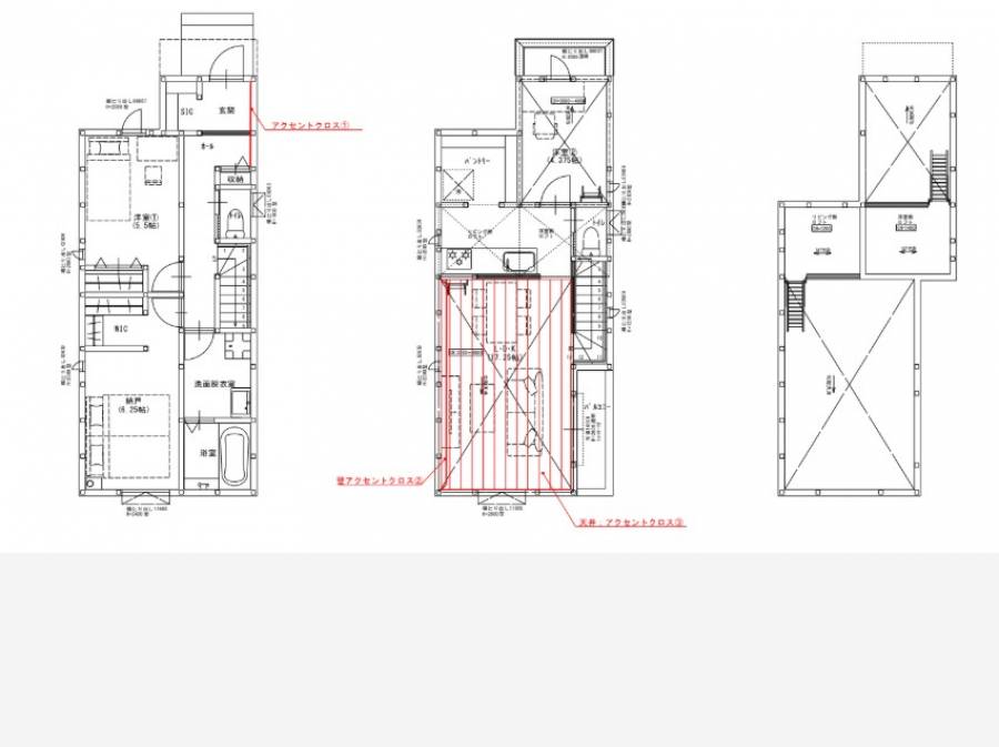
歴史のある亀ヶ岡団地に新築戸建が誕生いたします。
間取りは2SLDKですが、実質3LDKとしてご利用いただけます。
1階には水回りを集約し、マリンスポーツ帰りに最適な間取り。
2階のリビングは、目線が気にならないプライベート空間。
パントリーもあり、毎日の家事もスムーズに!
逗子マリーナも徒歩圏内、マリンリゾートの雰囲気を日常に取り入れる。オンとオフの湘南生活を始めてみませんか?
詳細はお気軽にお問い合わせください!
~逗子・葉山~
逗子(ずし)と葉山(はやま)は、神奈川県の湘南地域に位置し、都心からのアクセスも良く、自然と都市のバランスが絶妙。
逗子の海は浅瀬で波が穏やかなので、SUP・ウィンドサーフィンのエリアとしても多くの方に好まれてます。
高台には公園があり、富士山や江の島を一望でき、春には"桜"秋には"紅葉"が美しく彩ります。
また、逗子銀座商店街には老舗のお店やこだわりのカフェ、地元グルメも。
歩いてるだけで楽しくなります。
夏は、逗子花火大会、映画祭などイベントも盛りだくさん。
葉山(はやま)には代表的な海があり、夕焼けと富士山のコラボはまさに息をのむような景色です。
海を眺めながらゆっくり過ごす時間も素晴らしいですね。
逗子も葉山もそれぞれ違った魅力がある。そんな街です。
| 種別 | 新築戸建 | 交通 |
JR横須賀線 /
逗子駅
バス20分 徒歩1分 京急逗子線 / 逗子・葉山駅 バス22分 徒歩1分 |
|---|---|---|---|
| 価格 | 3,690万円(税込) | 所在地 | 逗子市小坪1丁目 |
| 土地面積 | 83.34m² (25.21坪) | 権利形態 | 所有権 |
| 建物面積 | 80.18m² (24.25坪) | 私道負担 | |
| 築年月 | 完成済み 令和 8年 1月 | 構造・階建て | 木造 地上2階 |
| 建築確認番号 | 第AI建築確認00-2500348号 | 間取り | 2LDK + 納戸(6.25帖)+ウォークインクローゼット+シューズインクローク+パントリー |
| 現況 | 完成済み | 取引形態 | 仲介 |
| 物件番号 | 36-30086 | ||
| 備考 | 都市ガス・本下水完備 ※納戸(6.25帖)は二面採光です。 引き渡し: 相談 亀ヶ岡公園まで徒歩2分 約140m セブンイレブン逗子久木4丁目店まで徒歩6分 約450m ファミリーマート逗子小坪店まで徒歩9分 約650m |
||
この物件情報は 株式会社東宝ハウス湘南 からの提供になります。
[この物件についてお電話でお問合せは]
0120-104-158
物件番号
36-30086
本サイトは株式会社東宝ハウス湘南 と株式会社東宝ハウス逗子・葉山リゾート の共同提供になります。
