藤沢
「辻堂」駅まで徒歩17分、南東向きLDK20帖の新築戸建
[この物件についてお電話でお問い合わせは]
0120-104-158
物件番号 36-30702
周辺環境も充実しております!
ご覧いただきありがとうございます。
今回ご紹介するのは、藤沢市城南5丁目に誕生するJR「辻堂」駅から徒歩約17分という、利便性と穏やかな住環境を兼ね備えたロケーションに位置します、新築戸建てのご紹介です。
110㎡〜143㎡超のゆとりある敷地 区画1(110㎡)や区画4(143㎡)など、ゆとりある土地面積を確保 。建物面積は約95㎡の参考プランをご用意しており、家族みんながのびのびと過ごせる空間設計が可能です。
土地のみ販売も行っておりますので、ご希望の場合はお申し付けくださいませ。
皆様からのお問合せお待ちしております。
湘南は、太陽の光が降り注ぎ、豊かな自然と美しい街並みが調和した、特別な暮らしを楽しめる地域です。
新たなマイホームを考える際には、資金計画やローンのこと、新しい土地での生活への不安など、さまざまな心配があるかもしれません。
そうした不安を一つひとつ丁寧に取り除き、お客様が安心して家さがしを進められるよう、心を込めてお手伝いしています。
住まいの購入は新しい暮らしの始まりです。
理想の住まいとの出会いを目指して、どうぞお気軽にご相談ください!
| 種別 | 新築戸建 | 交通 |
JR東海道本線 /
辻堂駅
徒歩17分 |
|---|---|---|---|
| 価格 | 5,780万円(税込) | 所在地 | 藤沢市城南5丁目 |
| 土地面積 | 116.39m² (35.20坪) | 権利形態 | 所有権 |
| 建物面積 | 100.38m² (30.36坪) | 私道負担 | |
| 築年月 | 完成予定 令和 8年 5月 | 構造・階建て | 木造 地上2階 |
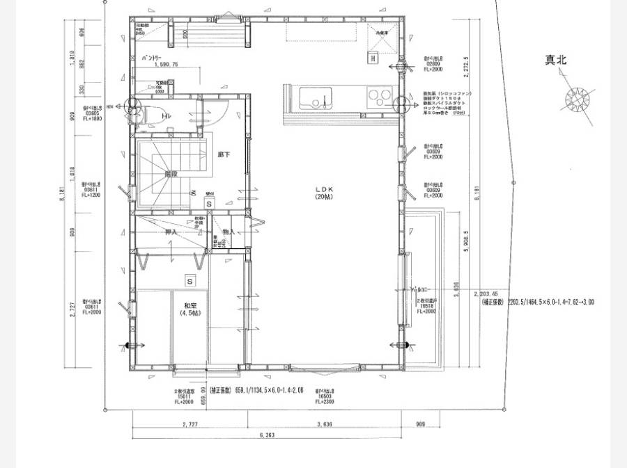
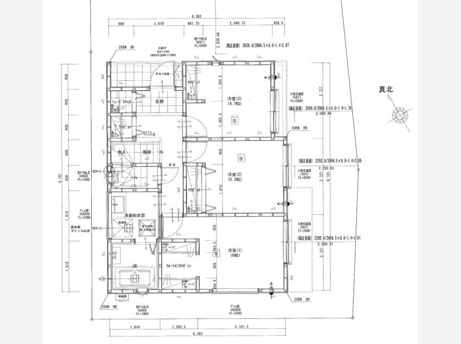
| 建築確認番号 | 第25KAK建確02696号 | 間取り | 4LDK + ウォークインクローゼット+シューズインクローク+パントリー |
| 現況 | 建築中 | 取引形態 | 仲介 |
| 物件番号 | 36-30702 | ||
| 備考 | 都市ガス・本下水完備 引き渡し: 相談 |
||
この物件情報は 株式会社東宝ハウス湘南 からの提供になります。
[この物件についてお電話でお問合せは]
0120-104-158
物件番号
36-30702
本サイトは株式会社東宝ハウス湘南 と株式会社東宝ハウス逗子・葉山リゾート の共同提供になります。
