茅ヶ崎
【辻堂駅まで徒歩16分】
辻堂を遊び尽くす拠点、こだわりのデザイナーズハウス
[この物件についてお電話でお問い合わせは]
0120-104-158
物件番号 37-30607
完成イメージパース
「湘南の家さがし」をご覧いただき、ありがとうございます。
辻堂駅徒歩16分、利便性の高い立地に誕生する新築邸宅のご紹介です。
駅からは分かりやすい一本道で、前面道路は幅9mと広く、お車の出し入れもスムーズです。
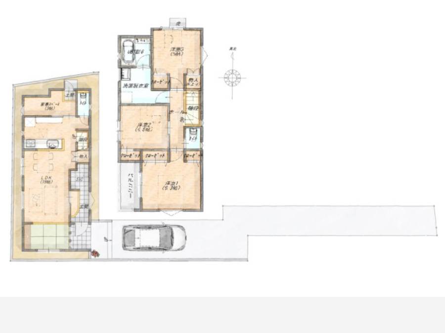
間取りは3LDK+フリースペースをご用意しました。
湘南ライフの拠点となるこの場所を、ぜひ一度ご覧ください。 お問い合わせを心よりお待ちしております。
湘南で、「理想の暮らし」を始めませんか。
「この人生で一度は体験してみたい特別なライフスタイル」。それが、湘南にはあります。
波の音、輝く太陽と潮の香り、木々の間から差し込む木漏れ日、鳥のさえずり…。歴史ある街並みや洗練された雰囲気、そして広がる海と豊かな自然。ここでしか出会えない景色と、ゆったりと流れる時間に魅せられて、多くの方が新しい暮らしを求めています。
マイホームのご購入は、人生で何度もあるものではありません。夢や希望に胸を膨らませる一方で、様々な不安やお悩みもあるかと思います。
購入資金やローンのこと
新しい土地に馴染めるか
注文住宅を建てるなら、どこに依頼すればいいのか
そうした疑問や不安を一つずつ解消しながら、お客様が安心して家探しを進められるよう、私たち東宝ハウスグループが全力でサポートします。
「~住まいのもっと先へ~」
ご購入はゴールではなく、新しい暮らしのスタートです。お客様が思い描く明るく楽しい生活までを、私たちは共に描いていきたいと考えています。
まずは一度、湘南の空気を感じに来てみませんか? きっと、ここで暮らすあなたの未来が、自然と見えてくるはずです。
ご家族皆様のこれからの幸せのために、あなたと理想の「お住まい」とをお繋ぎするお手伝いを、誠心誠意させていただきます。
どうぞお気軽にご相談ください。ご連絡をお待ちしております
| 種別 | 新築戸建 | 交通 |
JR東海道本線 /
辻堂駅
徒歩16分 JR東海道本線 / 辻堂駅 バス2分 徒歩4分 |
|---|---|---|---|
| 価格 | 5,480万円(税込) | 所在地 | 茅ヶ崎市菱沼3丁目 |
| 土地面積 | 129.68m² (39.22坪) | 権利形態 | 所有権 |
| 建物面積 | 91.64m² (27.72坪) | 私道負担 | |
| 築年月 | 完成予定 令和 8年 5月 | 構造・階建て | 木造 地上2階 |
| 建築確認番号 | 間取り | 3LDK + ユーティリティ+畳コーナー+シューズインクローク | |
| 現況 | 更地 | 取引形態 | 仲介 |
| 物件番号 | 37-30607 | ||
| 備考 | 都市ガス・本下水完備 引き渡し: 相談 小和田小学校まで徒歩3分 約240m 赤羽根中学校まで徒歩13分 約1040m |
||
| その他要件 |
土地面積には路地状部分約30%を含みます |
||
この物件情報は 株式会社東宝ハウス湘南 からの提供になります。
[この物件についてお電話でお問合せは]
0120-104-158
物件番号
37-30607
本サイトは株式会社東宝ハウス湘南 と株式会社東宝ハウス逗子・葉山リゾート の共同提供になります。
