藤沢
〜家族の笑顔あふれる新生活をここから〜
辻堂東海岸3丁目・2026年3月完成予定
[この物件についてお電話でお問い合わせは]
0120-104-158
物件番号 06-30326
完成イメージ
ご覧いただきありがとうございます。
今回ご紹介するのは辻堂東海岸3丁目です。
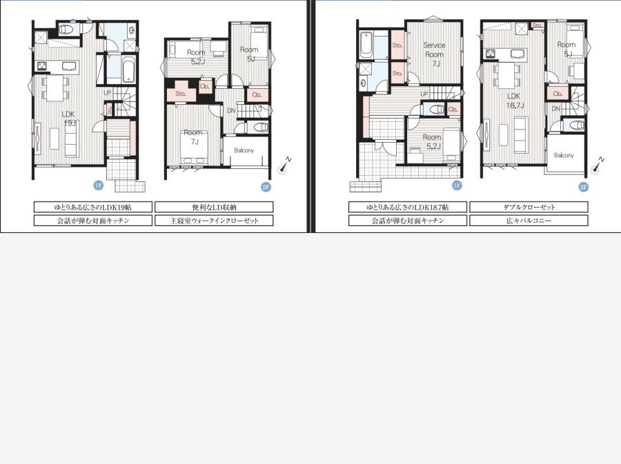
3LDKの二階建て住環境が整ったお住まいです。
徒歩10分圏内に中学校や小学校があり学習に便利な立地、さらに辻堂海浜公園へも徒歩10分圏内で休日お子様と遊びに出かけたり、ランニングや運動をしてリフレッシュすることができます。
駐車スペースは2台分完備、買い物やドライブに非常に便利です。
<<辻堂東海岸>>
湘南らしい海の近さと、落ち着いた住宅環境が共存するエリアです。
辻堂海岸へ徒歩や自転車で気軽にアクセスでき、海を感じる暮らしを日常に取り入れながら、穏やかに子育てができる環境が整っています。
このエリアの魅力は、海が近いのに生活のしやすさが高いこと。
観光地の喧騒から程よく距離があり、低層住宅を中心とした静かな街並みが広がります。車通りも比較的落ち着いており、小さなお子さまのいるご家庭にも安心感があります。
海岸までは身近な距離のため、
朝の散歩やランニング、休日の砂浜遊びなど、自然と触れ合う時間が家族の日常になります。季節の変化を感じながら育つ環境は、子育て世代にとって大きな魅力です。
生活利便性も充実。
スーパーやドラッグストア、医療施設が近く、辻堂駅方面やテラスモール湘南へもアクセスしやすいため、忙しい毎日でも無理のない生活動線が確保されています。
自然、安心、暮らしやすさ。
辻堂東海岸三丁目は、海のそばで家族の時間を大切に育てたい方に選ばれている街です。
お客様からのお問い合わせ心よりおまちしております。
| 種別 | 新築戸建 | 交通 |
小田急江ノ島線 /
鵠沼海岸駅
徒歩23分 JR東海道本線 / 辻堂駅 徒歩29分 |
|---|---|---|---|
| 価格 | 6,680万円 | 所在地 | 藤沢市辻堂東海岸3丁目 |
| 土地面積 | 110.20m² (33.33坪) | 権利形態 | 所有権 |
| 建物面積 | 89.67m² (27.12坪) | 私道負担 | |
| 築年月 | 完成予定 令和 8年 3月 | 構造・階建て | 木造 地上2階 |
| 建築確認番号 | 第KBI-YKH25-10-2557号 | 間取り | 3LDK + ウォークインクローゼット |
| 現況 | 建築中 | 取引形態 | 仲介 |
| 物件番号 | 06-30326 | ||
| 備考 | 都市ガス・本下水完備 引き渡し: 相談 二葉保育園まで徒歩14分 約1100m 辻堂小学校まで徒歩4分 約290m 湘洋中学校まで徒歩7分 約550m クリエイトSDまで徒歩4分 約280m セブンイレブンまで徒歩6分 約450m 西友まで徒歩7分 約500m 業務スーパーまで徒歩14分 約1100m |
||
この物件情報は 株式会社東宝ハウス湘南 からの提供になります。
[この物件についてお電話でお問合せは]
0120-104-158
物件番号
06-30326
本サイトは株式会社東宝ハウス湘南 と株式会社東宝ハウス逗子・葉山リゾート の共同提供になります。
