藤沢
辻堂駅徒歩圏の新築で、マイホームという選択を。
[この物件についてお電話でお問い合わせは]
0120-104-485
物件番号 23-30146
角地ならではの解放感のある敷地
北東角地ならではの開放感と、暮らしやすさを考え抜いた動線設計。
羽鳥という街の穏やかさが、毎日の時間をやさしく包み込む住まいです。
この機会にぜひ現地をご覧ください。
どうぞお気兼ねなく、《鈴木》までお申し付けください。
藤沢市羽鳥。
穏やかな住宅街の空気と、日常の利便性が心地よく重なるこのエリアに、新しい住まいが誕生します。
辻堂駅まで徒歩圏という条件は、日々の通勤やお出かけにゆとりをもたらしながら、住環境としての落ち着きもきちんと守ってくれます。
便利さの中に、静かな時間が自然と溶け込む暮らしがここにあります。
北東角地という配置が生むのは、空の広がりとやわらかな採光。
室内には一日を通して穏やかな光が差し込み、家の中の時間がゆっくりと整っていきます。
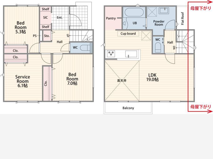
間取りは2SLDKにパントリーとシューズインクロークを備えた設計。
生活動線と収納のバランスがよく、住まい全体がすっきりと保たれます。
毎日の小さな動きがスムーズにつながることで、暮らしのリズムが心地よく回り始めます。
建物はZEH水準仕様。
日々の快適性と将来を見据えた住まいとして、安心して暮らせる土台が整えられています。
この場所で過ごす時間が、暮らしの質を少しずつ高めてくれる。
そんな住まいです。
マイホーム探しはワクワクする反面、不安や悩みもつきものです。
私はこれまで、建築現場でのリアルな知識と、住まいづくりの提案を長年積み重ねてきました。
だからこそ、お客様の「本当の想い」を丁寧にくみ取り、家が建つその先の幸せな暮らしまで見据えたご提案を大切にしています。
湘南での暮らしが、日々の癒しとなり、ご家族の思い出になるように。
お客様それぞれの人生に寄り添い、心を込めてお手伝いさせていただきます。
湘南の家さがし、どうぞ私《鈴木浩史》にお任せください。
| 種別 | 新築戸建 | 交通 |
JR東海道本線 /
辻堂駅
徒歩20分 JR東海道本線 / 辻堂駅 バス5分 徒歩1分 |
|---|---|---|---|
| 価格 | 5,990万円(税込) | 所在地 | 藤沢市羽鳥5丁目 |
| 土地面積 | 116.28m² (35.17坪) | 権利形態 | 所有権 |
| 建物面積 | 93.57m² (28.30坪) | 私道負担 | |
| 築年月 | 完成予定 令和 8年 2月 | 構造・階建て | 木造 地上2階 |
| 建築確認番号 | 第25KAK建確01859号 | 間取り | 2LDK + サービスルーム(6.1帖)+シューズインクローク+パントリー |
| 現況 | 建築中 | 取引形態 | 仲介 |
| 物件番号 | 23-30146 | ||
| 備考 | 都市ガス・本下水完備 ※サービスルーム(6.1帖)は二面採光です 引き渡し: 相談 羽鳥小学校まで徒歩7分 約500m 羽鳥中学校まで徒歩4分 約300m 羽鳥四丁目公園まで徒歩1分 約50m ファミリーマートまで徒歩5分 約350m 湘南モールフィルまで徒歩8分 約600m 湘南モールフィル郵便局まで徒歩9分 約700m クリエイトS·D鵠沼神明店まで徒歩11分 約850m |
||
この物件情報は 株式会社東宝ハウス湘南 からの提供になります。
[この物件についてお電話でお問合せは]
0120-104-485
物件番号
23-30146
本サイトは株式会社東宝ハウス湘南 と株式会社東宝ハウス逗子・葉山リゾート の共同提供になります。
